it
―
▫ HOME
▫ SERVIZI
— servizi BIM
— architettura
— ingegneria strutturale
— know-how prefabbricato
▫ PROGETTI
▫ CONTATTI
I am ready for a long road flight for working with a week- or months-long projects.
it
ru
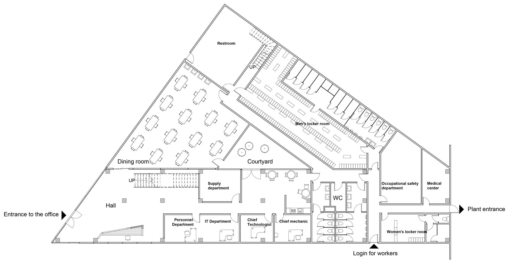
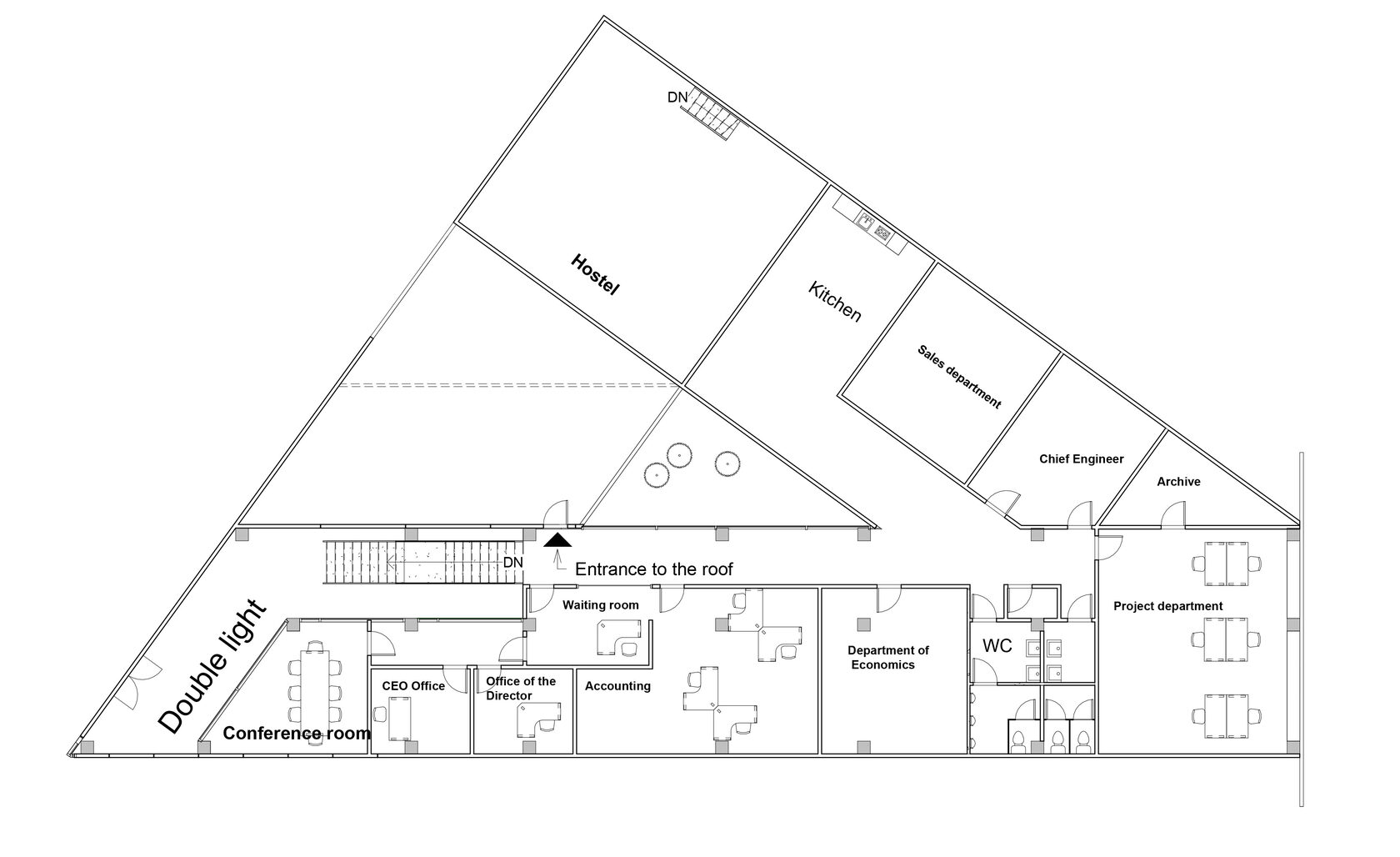
PROGETTI
OBERBETON
Ufficio e Showroom
Ucraina
1 000 mq
2024
architettura